6740 Tampa AvenueReseda, CA 91335



Mortgage Calculator
Monthly Payment (Est.)
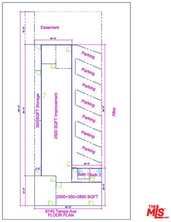
$6,844Prime opportunity to own a highly visible office/retail building on a main street in Reseda. The property features five separate entrances and is currently configured as one large office but can be divided into multiple office spaces at the Buyer's expense. The site includes eight designated parking spaces along with ample street parking. This versatile building offers excellent visibility and exposure, ideal for retail shops or professional office use. The Seller will consider all offers. Please note, the Listing Agent is also the Seller. Recent building laws may allow development of up to 75% of the lot as a mixed-use commercial and residential project of up to two stories (Buyer to verify). Buyer is advised to conduct their own due diligence with the City of Los Angeles regarding permits and approvals, as Seller makes no guarantees.
| 2 months ago | Listing updated with changes from the MLS® | |
| 2 months ago | Listing first seen on site |
Based on information from the The MLS as of 2025-10-28 09:16 AM UTC. All data, including all measurements and calculations of area, is obtained from various sources and has not been, and will not be, verified by broker or MLS. All information should be independently reviewed and verified for accuracy. Properties may or may not be listed by the office/agent presenting the information.

Did you know? You can invite friends and family to your search. They can join your search, rate and discuss listings with you.