6740 Tampa AvenueReseda, CA 91335



Mortgage Calculator
Monthly Payment (Est.)
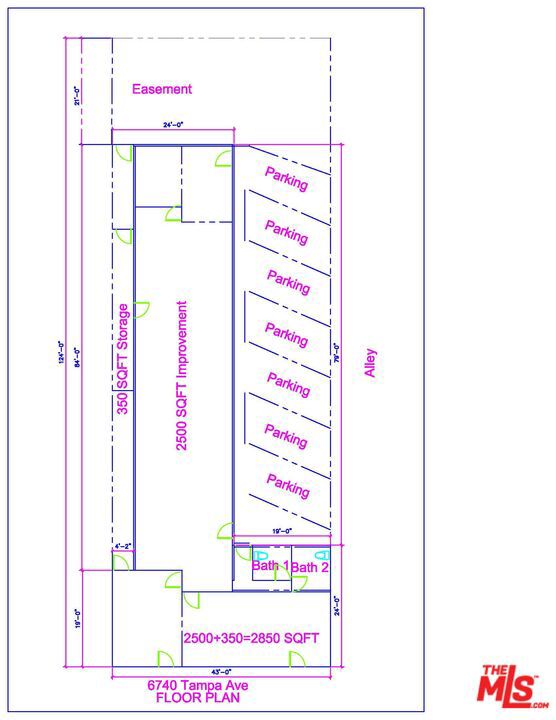
$6,844Prime opportunity to own a highly visible office/retail building on a main street in Reseda. The property features five separate entrances and is currently configured as one large office but can be divided into multiple office spaces at the Buyer's expense. The site includes eight designated parking spaces along with ample street parking. This versatile building offers excellent visibility and exposure, ideal for retail shops or professional office use. The Seller will consider all offers. Please note, the Listing Agent is also the Seller. Recent building laws may allow development of up to 75% of the lot as a mixed-use commercial and residential project of up to two stories (Buyer to verify). Buyer is advised to conduct their own due diligence with the City of Los Angeles regarding permits and approvals, as Seller makes no guarantees.
| 2 months ago | Listing updated with changes from the MLS® | |
| 2 months ago | Listing first seen on site |
This information is for your personal, non-commercial use and may not be used for any purpose other than to identify prospective properties you may be interested in purchasing. The display of MLS data is usually deemed reliable but is NOT guaranteed accurate by the MLS. Buyers are responsible for verifying the accuracy of all information and should investigate the data themselves or retain appropriate professionals. Information from sources other than the Listing Agent may have been included in the MLS data. Unless otherwise specified in writing, the Broker/Agent has not and will not verify any information obtained from other sources. The Broker/Agent providing the information contained herein may or may not have been the Listing and/or Selling Agent.

Did you know? You can invite friends and family to your search. They can join your search, rate and discuss listings with you.